LES OBRES, PRESENTADES AHIR A L’ASSEMBLEA CIUTADANA DAVANT MÉS DE CENT PERSONES, TENDRAN UN PRESSUPOST DE 140.360,00 € I CONSISTIRAN AMB DISTINTES ACTUACIONS COM LA SUBSTITUCIÓ TOTAL DE LA COBERTA PER EVITAR FILTRACIONS
L’Ajuntament d’Esporles ha iniciat les obres de millora del Centre Cotoner, una actuació prioritària per resoldre definitivament els problemes d’impermeabilització de l’edifici i garantir unes instal·lacions adequades per a les entitats i serveis municipals que acull. El batle d’Esporles, Josep Ferrà, ha destacat que “el Centre Cotoner és un espai molt estimat i utilitzat pel poble, i amb aquesta inversió resolim definitivament un problema que feia anys que arrossegàvem, garantint un equipament en bones condicions per a tothom.”
Dades principals de l’actuació
Les obres han estat adjudicades a l’empresa Construccions, Reformes i Manteniments ADA S.L.U., amb les següents dades principals:
Import d’adjudicació: 140.360,00 €
Inici de les obres: 13 de febrer (acta de replanteig) – inici efectiu dilluns 16 de febrer
Termini d’execució: 3 mesos
La regidora d’Urbanisme ha explicat que “aquesta actuació implica la renovació completa de la coberta i la millora del sistema d’impermeabilització. S’ha treballat amb rigor tècnic per garantir una solució duradora i eficient que resolgui definitivament les filtracions i goteres.”
Un equipament clau per al poble
El Centre Cotoner és un espai central per a la vida social d’Esporles. L’edifici acull la seu de l’Associació de Gent Gran d’Esporles, el Centre de Formació i Ocupació de l’Ajuntament i nombroses activitats d’entitats i col·lectius del municipi. En aquest sentit, la regidora de Serveis Socials, Gent Gran i Ocupació ha remarcat que “es tracta d’un espai viu i molt utilitzat, especialment per la nostra gent gran i per les activitats formatives i d’ocupació. Aquestes obres milloraran el confort, la seguretat i la qualitat de les activitats que s’hi desenvolupen cada dia.”
Actuacions previstes
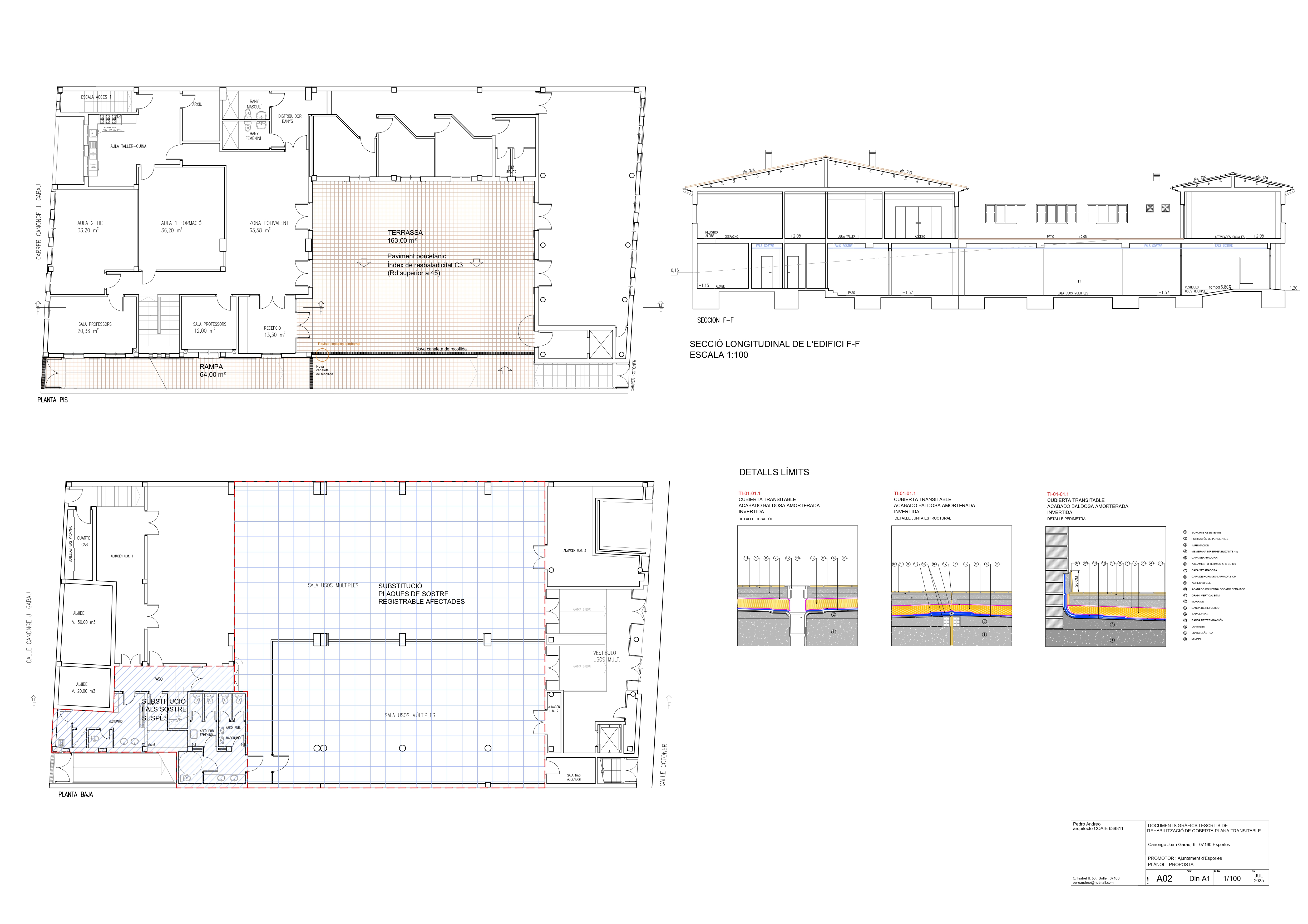
El projecte contempla la substitució total de la coberta plana transitable, després de detectar-se problemes de permeabilització, filtracions i goteres. Les feines consistiran en la retirada del paviment i del sistema d’impermeabilització actual fins al suport del forjat, i la instal·lació d’un nou sistema que garanteixi la correcta impermeabilització i durabilitat. També es preveu la possible incorporació d’aïllament tèrmic per millorar l’eficiència energètica, segons les condicions tècniques finals. Aquesta intervenció no afecta l’estructura ni l’activitat de l’edifici, ni implica modificacions urbanístiques.
Un projecte compartit amb la ciutadania
El projecte es va presentar ahir vespre en una Assemblea Ciutadana Oberta, amb una participació molt alta de més de cent persones, en un espai de transparència i explicació directa a la ciutadania. El batle ha assenyalat que “volem que els veïns i veïnes coneguin de primera mà les actuacions municipals i puguin seguir l’evolució dels projectes que milloren els equipaments del poble.”
Un problema històric que es resol definitivament
El consistori ha treballat de manera continuada per solucionar aquesta problemàtica, amb una primera reparació de la Brigada Municipal (abril de 2023), una inspecció tècnica (desembre de 2024), la recepció de l’informe tècnic (març de 2025), la redacció del projecte bàsic i executiu (juliol de 2025) i la licitació de les obres a finals de 2025. El batle ha conclòs que “continuam treballant per millorar els equipaments municipals i els espais públics, reforçant el compromís de l’Ajuntament amb el benestar de la ciutadania i el suport al teixit associatiu del municipi.”


